物件詳細
売買>土地を検索します
![]() 敷地面積およそ731坪! |
お問い合わせ歓迎!![]() |
||
| 地区 | 南砺市 | ||
|---|---|---|---|
| 所在地 | 南砺市高瀬 | » 周辺マップをみる | |
|
![]() |
||
内観![]() |
内観![]() |
内観![]() |
内観![]() |
内観![]() |
内観![]() |
| 価 格 | 2,498万円 | 坪単価 | 3.4万円 |
|---|---|---|---|
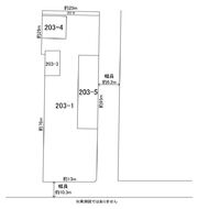
| 土地面積 | 2,419.19m² | 土地坪数 | 731.80坪 |
| 建ぺい率 | 60% | 容積率 | 200% |
| 用途地域 | 無指定地域 | 地 目 | 宅地、雑種地 |
| 分割販売 | 不可 | 国土計画法 | |
| 交通手段 | バス 高瀬神社前停 徒歩6分 | 負担金 | |
| 小学校区 | 井波小学校 | 中学校区 | 井波中学校 |
| 融雪装置 | 舗 装 | 有 | |
| 道 幅 | 10.30m | 間 口 | 20.00m |
| 正面方角 | 上水道 | ||
| ガ ス | トイレ | ||
| 状態 | 売出中 | 備 考 | 敷地内に事務所・倉庫2棟ございます。 |
| 取引態様 | 仲介 |
お問い合わせ先
物件コード:355926013051
携帯からもこの物件を閲覧できます
下記のQRコードからアクセス下さい
- (株)ABC 不動産部
-

- 富山県知事免許(4)第2749号
- TEL : 076-423-3383
FAX : 076-423-3386 - URL : http://www.abc-e.jp
※「住まいネットを見て」とお問い合わせください。スムーズに話が通ります。














