物件詳細
売買>一戸建を検索します
![]() 収納力抜群7DK!入善駅徒歩約15分の立地のため利便性あり! |
お問い合わせ歓迎!![]() |
||
| 地区 | 入善町 | ||
|---|---|---|---|
| 所在地 | 入善町上野 | » 周辺マップをみる | |
|
![]() |
||
内観![]() |
内観![]() |
内観![]() |
内観![]() |
内観![]() |
内観![]() |
内観![]() |
内観![]() |
内観![]() |
内観![]() |
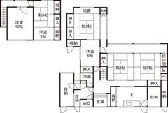
| 間 取 | 7DK | 間取内訳 | 1F:キッチン、トイレ、風呂、洋6、和8、和8、和8 2F:洋10、洋3、和6 |
|---|---|---|---|
| 価 格 | 198万円 | ||
| 土地面積 | 248.08m² | 土地坪数 | 75.04坪 |
| 建物面積 | 140.05m² | 建物坪数 | 42.36坪 |
| 建物構造 | 木造 | 建物階数 | |
| 築年月 | S48年3月 | 入居時期 | 即日可 |
| 建ぺい率 | 60% | 容積率 | 100% |
| 用途地域 | 第一種低層住居専用地域 | 地 目 | 宅地 |
| 交通手段 | あいの風とやま鉄道 入善駅 徒歩15分 | 駐車スペース | 無 |
| 小学校区 | 上青小学校 | 中学校区 | 入善西中学校 |
| 融雪装置 | 有 | - | |
| 玄関の方角 | 北 | 上水道 | 有り |
| ガ ス | LPガス | トイレ | 下水道 |
| 取引態様 | 仲介 | 備 考 | |
| 設備・条件 | |||
お問い合わせ先
物件コード:455921061151
携帯からもこの物件を閲覧できます
下記のQRコードからアクセス下さい
- (株)ABC 不動産部
-

- 富山県知事免許(4)第2749号
- TEL : 076-423-3383
FAX : 076-423-3386 - URL : http://www.abc-e.jp
※「住まいネットを見て」とお問い合わせください。スムーズに話が通ります。


















