物件詳細
売買>一戸建を検索します
![]() 保育園・小学校・中学校まで徒歩約10分圏内☆ |
お問い合わせ歓迎!![]() |
||
| 地区 | 富山市南部 | ||
|---|---|---|---|
| 所在地 | 富山市月見町 | » 周辺マップをみる | |
|
![]() |
||
内観![]() |
内観![]() |
内観![]() |
内観![]() |
内観![]() |
内観![]() |
内観![]() |
その他![]() |
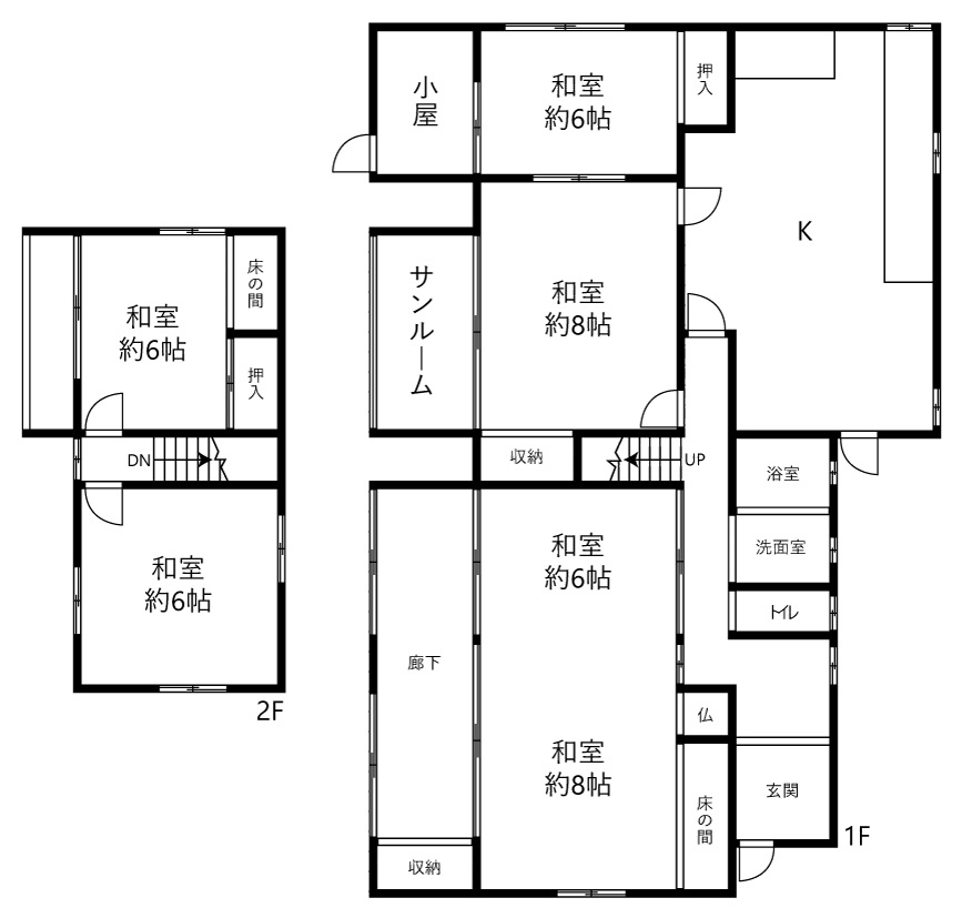
| 間 取 | 6DK | 間取内訳 | 和室6帖、和室8帖、和室6帖、和室8帖、和室6帖、和室6帖 |
|---|---|---|---|
| 価 格 | 498万円 | ||
| 土地面積 | 273.37m² | 土地坪数 | 82.69坪 |
| 建物面積 | 132.64m² | 建物坪数 | 40.12坪 |
| 建物構造 | 木造 | 建物階数 | 2階建 |
| 築年月 | S50年3月 | 入居時期 | 即日可 |
| 建ぺい率 | 60% | 容積率 | 200% |
| 用途地域 | 無指定地域 | 地 目 | 宅地 |
| 交通手段 | バス 月岡団地停 徒歩6分 | 駐車スペース | 有 |
| 小学校区 | 月岡小学校 | 中学校区 | 月岡中学校 |
| 融雪装置 | 有 | - | |
| 玄関の方角 | 上水道 | 引込有 | |
| ガ ス | LPガス | トイレ | 下水道 |
| 取引態様 | 仲介 | 備 考 | のどかでゆったりと暮らしたい方におすすめ! |
| 設備・条件 | |||
お問い合わせ先
物件コード:455925020851
携帯からもこの物件を閲覧できます
下記のQRコードからアクセス下さい
- (株)ABC 不動産部
-

- 富山県知事免許(4)第2749号
- TEL : 076-423-3383
FAX : 076-423-3386 - URL : http://www.abc-e.jp
※「住まいネットを見て」とお問い合わせください。スムーズに話が通ります。
















