物件詳細
売買>一戸建を検索します
![]() |
お問い合わせ歓迎!![]() |
||
| 地区 | 富山市西部 | ||
|---|---|---|---|
| 所在地 | 富山市草島 | » 周辺マップをみる | |
|
![]() |
||
内観![]() |
玄関![]() |
内観![]() |
内観![]() |
内観![]() |
内観![]() |
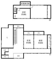
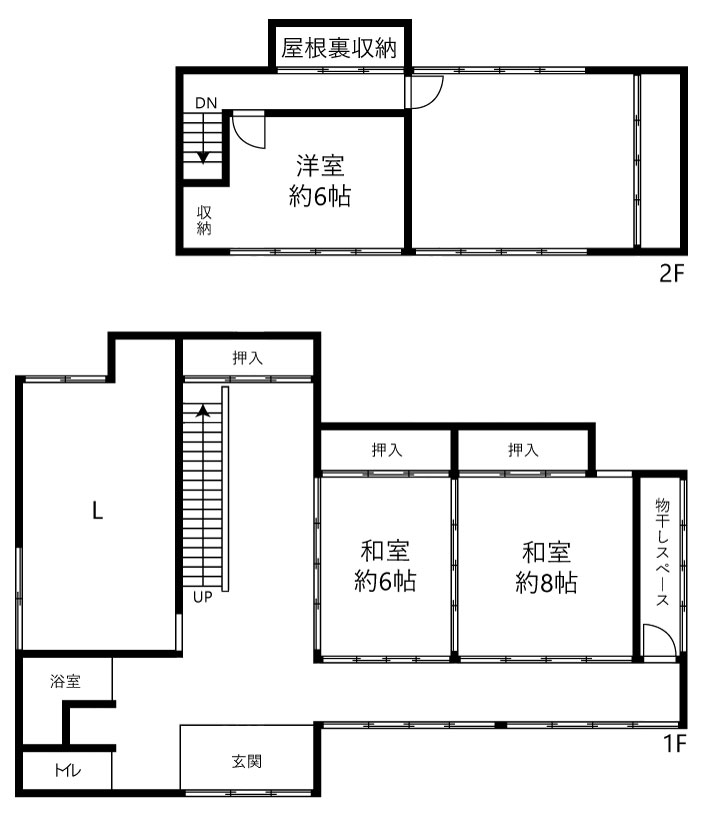
| 間 取 | 4DK | 間取内訳 | 和室6畳、和室8畳、洋室6帖 |
|---|---|---|---|
| 価 格 | 298万円 | ||
| 土地面積 | 212.78m² | 土地坪数 | 64.36坪 |
| 建物面積 | 98.86m² | 建物坪数 | 29.90坪 |
| 建物構造 | 木造 | 建物階数 | 2階建 |
| 築年月 | S50年8月 | 入居時期 | 相談 |
| 建ぺい率 | 60% | 容積率 | 200% |
| 用途地域 | 第一種住居地域 | 地 目 | 宅地 |
| 交通手段 | ライトレール 蓮町駅 徒歩20分 | 駐車スペース | |
| 小学校区 | 草島小学校 | 中学校区 | 和合中学校 |
| 融雪装置 | 無 | - | |
| 玄関の方角 | 上水道 | ||
| ガ ス | トイレ | ||
| 取引態様 | 仲介 | 備 考 | |
| 設備・条件 | |||
お問い合わせ先
物件コード:455925100451
携帯からもこの物件を閲覧できます
下記のQRコードからアクセス下さい
- (株)ABC 不動産部
-

- 富山県知事免許(4)第2749号
- TEL : 076-423-3383
FAX : 076-423-3386 - URL : http://www.abc-e.jp
※「住まいネットを見て」とお問い合わせください。スムーズに話が通ります。














