物件詳細
売買>一戸建を検索します
![]() 敷地面積およそ411坪☆ |
お問い合わせ歓迎!![]() |
||
| 地区 | 滑川市 | ||
|---|---|---|---|
| 所在地 | 滑川市高月町 | » 周辺マップをみる | |
|
![]() |
||
その他![]() |
内観![]() |
内観![]() |
内観![]() |
内観![]() |
内観![]() |
内観![]() |
内観![]() |
玄関![]() |
内観![]() |
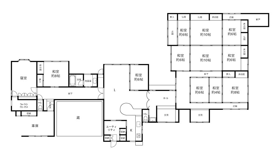
| 間 取 | 12LDK | 間取内訳 | 洋室8帖、和室4畳×2、和室6畳×5、和室8畳×2、和室10畳×2 |
|---|---|---|---|
| 価 格 | 650万円 | ||
| 土地面積 | 1,361.98m² | 土地坪数 | 411.99坪 |
| 建物面積 | 417.64m² | 建物坪数 | 126.33坪 |
| 建物構造 | 木造 | 建物階数 | 2階建 |
| 築年月 | H4年4月 | 入居時期 | 即日可 |
| 建ぺい率 | 60% | 容積率 | 200% |
| 用途地域 | 第一種住居地域 | 地 目 | 宅地 |
| 交通手段 | あいの風とやま鉄道 西滑川駅 徒歩16分 | 駐車スペース | 有 |
| 小学校区 | 田中小学校 | 中学校区 | 滑川中学校 |
| 融雪装置 | 有 | - | |
| 玄関の方角 | 上水道 | 引き込み有 | |
| ガ ス | LPガス | トイレ | 下水道 |
| 取引態様 | 仲介 | 備 考 | |
| 設備・条件 | |||
お問い合わせ先
物件コード:455925103051
携帯からもこの物件を閲覧できます
下記のQRコードからアクセス下さい
- (株)ABC 不動産部
-

- 富山県知事免許(4)第2749号
- TEL : 076-423-3383
FAX : 076-423-3386 - URL : http://www.abc-e.jp
※「住まいネットを見て」とお問い合わせください。スムーズに話が通ります。


















