物件詳細
売買>一戸建を検索します
![]() 晴れた日にはベランダから立山連峰が見れます☆ |
お問い合わせ歓迎!![]() |
||
| 地区 | 富山市北部 | ||
|---|---|---|---|
| 所在地 | 富山市日方江 | » 周辺マップをみる | |
|
![]() |
||
内観![]() |
内観![]() |
内観![]() |
内観![]() |
内観![]() |
内観![]() |
内観![]() |
内観![]() |
内観![]() |
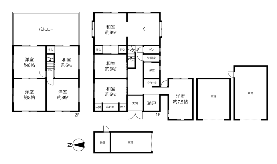
| 間 取 | 8DK | 間取内訳 | 洋室:8帖、8帖、8帖、7.5帖 和室:8帖、6帖、6帖、6帖 |
|---|---|---|---|
| 価 格 | 520万円 | ||
| 土地面積 | 350.04m² | 土地坪数 | 105.88坪 |
| 建物面積 | 111.89m² | 建物坪数 | 33.84坪 |
| 建物構造 | RC(鉄筋)造 | 建物階数 | 2階建 |
| 築年月 | S56年9月 | 入居時期 | 即日可 |
| 建ぺい率 | 60% | 容積率 | 200% |
| 用途地域 | 市街化調整区域 | 地 目 | 宅地 |
| 交通手段 | バス 日方江東停 徒歩5分 | 駐車スペース | |
| 小学校区 | 浜黒崎小学校 | 中学校区 | 北部中学校 |
| 融雪装置 | - | ||
| 玄関の方角 | 上水道 | 引き込み有 | |
| ガ ス | トイレ | 下水道 | |
| 取引態様 | 仲介 | 備 考 | ※市街化調整区域のため自己居住用住宅のみ再建築可 |
| 設備・条件 | |||
お問い合わせ先
物件コード:455926012351
携帯からもこの物件を閲覧できます
下記のQRコードからアクセス下さい
- (株)ABC 不動産部
-

- 富山県知事免許(4)第2749号
- TEL : 076-423-3383
FAX : 076-423-3386 - URL : http://www.abc-e.jp
※「住まいネットを見て」とお問い合わせください。スムーズに話が通ります。

















