物件詳細
売買>商業施設を検索します
![]() 敷地内2棟・延床面積約58坪のテナントビル付き! |
お問い合わせ歓迎!![]() |
||
| 地区 | 富山市中心部 | ||
|---|---|---|---|
| 所在地 | 富山市西大泉 | » 周辺マップをみる | |
|
![]() |
||
|
|
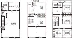
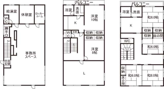
| 物件種別 | その他 | 間取内訳 | 1階:事務所スペース、休憩室、ロッカー室、給湯室、トイレ 2階:リビング、洋室10帖、洋室8帖、キッチン、ユニットバス、洗面所、トイレ 3階:和室8帖×2、和室6帖×2、キッチン、浴室、洗面所、トイレ、ベランダ |
|---|---|---|---|
| 価 格 | 4,998万円 | ||
| 土地面積 | 846.18m² | 土地坪数 | 255.96坪 |
| 建物面積 | 341.80m² | 建物坪数 | 103.39坪 |
| 建物構造 | 建物階数 | 3階建 | |
| 築年月 | H8年3月 | 入居時期 | 相談 |
| 建ぺい率 | 60% | 容積率 | 200% |
| 用途地域 | 第二種中高層住居専用地域 | 地 目 | 宅地 |
| 交通手段 | バス 大泉西町停 徒歩1分 | - | |
| 駐車スペース | 有 | 駐車台数 | 30台 |
| 正面方角 | 南 | 上水道 | 水道 |
| ガ ス | 都市ガス | トイレ | 下水道 |
| 取引態様 | 仲介 | 備 考 | 面積・間取り・設備等は事務所兼住宅のものです。 |
| 設備・条件 | |||
お問い合わせ先
物件コード:555923040751
携帯からもこの物件を閲覧できます
下記のQRコードからアクセス下さい
- (株)ABC 不動産部
-

- 富山県知事免許(4)第2749号
- TEL : 076-423-3383
FAX : 076-423-3386 - URL : http://www.abc-e.jp
※「住まいネットを見て」とお問い合わせください。スムーズに話が通ります。








